Thiết kế kiến trúc nhà cấp 4

Những mẫu nhà cấp 4 đẹp đang là xu hướng thiết kế thịnh hành ở các vùng nông thôn Việt Nam. Với phong cách kiến trúc đa dạng, đáp ứng được yêu cầu chi phí thấp nhưng vẫn đảm bảo tính thẩm mỹ, không gian sống thoải mái thì chắc chắn đây sẽ là gợi ý tuyệt vời cho gia đình bạn. Cùng Hưng Thành Phát tham khảo một số mẫu thiết kế nhà cấp 4 đẹp và tiết kiệm chi phí 2023 ngay dưới đây nhé.

Nhà cấp 4 là gì?

Theo quan niệm truyền thống, mẫu nhà cấp 4 đẹp là mẫu nhà có kết cấu vô cùng vững chắc, có khả năng chịu lực tốt và có chi phí xây dựng thấp. Thiết kế nhà cấp 4 hiện nay chủ yếu được làm từ vật liệu gạch, xi măng cốt thép hoặc bằng gỗ. Quanh nhà được bao quanh bởi tường hoặc vách ngăn bằng gạch hoặc hàng rào cây.

Mái nhà cấp 4 chủ được làm từ chất liệu ngói, tấm lợp vật liệu xi măng hoặc làm từ tre, gỗ, nứa, … Dù được xây dựng từ những nguyên vật liệu đơn giản nhưng tuổi thọ trung bình của mẫu nhà này cũng được khoảng 30 năm.

Mẫu nhà cấp 4 đẹp hiện đại

Mẫu nhà cấp 4 đẹp hiện đại

Một số đặc điểm của mẫu nhà cấp 4 đẹp và tiết kiệm chi phí hiện nay

Mẫu nhà cấp 4 đẹp hiện nay gây ấn tượng với gia chủ bởi một số đặc điểm sau:

Thời gian xây dựng nhanh chóng

Thời gian thiết kế và thi công nhà cấp 4 cũng khá nhanh chóng. Do yêu cầu về kiến trúc không quá phức tạp và đòi hỏi nhiều thời gian đổ mái như mẫu thiết kế biệt thự vì thế thời gian thi công ngôi nhà ngắn hắn và nhanh chóng có thể dọn vào ở được ngay sau khi hoàn thiện. Đây cũng là một trong những đặc điểm nổi bật khiến các mẫu thiết kế nhà cấp 4 được đông đảo gia chủ lựa chọn.

Thời gian thi công nhà cấp 4 nhanh chóng

Thời gian thi công nhà cấp 4 nhanh chóng

Kiến trúc đơn giản

Nhắc tới mẫu nhà cấp 4 đẹp chắc hẳn nhiều bạn đọc sẽ hình dung ra ngay lối thiết kế mẫu nhà cấp 4 đơn giản đặc trưng với 3 – 4 gian không quá cầu kỳ. Có lẽ chính sự đơn giản này đã tạo nên nét riêng cho kiến trúc nhà cấp 4 vẫn đảm bảo tính thẩm mỹ, ổn định và chắc chắn cho gia chủ.

Các mẫu thiết kế nhà cấp 4 đẹp có kết cấu, kiến trúc đơn giản

Các mẫu thiết kế nhà cấp 4 đẹp có kết cấu, kiến trúc đơn giản

Đa dạng phong cách

Hiện nay, mẫu nhà cấp 4 đẹp có nhiều phong cách xây dựng khác nhau, từ kiến trúc Châu Âu đến Châu Á, mái hiên tây hoặc hiên thái, … Tất cả đều đa dạng, hài hòa và thân thiện với nền văn hóa của Việt Nam.

Đa dạng phong cách

Đa dạng phong cách

Vật liệu xây dựng dễ tìm

Các nguyên vật liệu dùng để xây dựng nhà cấp 4 cũng không quá cầu kỳ nhưng vẫn đảm bảo sự an toàn, độ bền cho ngôi nhà không lo mưa bão làm hư hại. Đặc biệt, gia chủ có thể tận dụng những khối vật liệu xây dựng này để bổ sung hoặc hoàn thiện các kết cấu cho ngôi nhà rất tiện lợi và tiết kiệm chi phí.

Nguyên vật liệu để xây dựng nhà cấp 4 đơn giản và dễ tìm

Nguyên vật liệu để xây dựng nhà cấp 4 đơn giản và dễ tìm

Chi phí xây dựng hợp lý

Mẫu nhà cấp 4 đẹp hiện nay rất đa dạng về phong cách thiết kế, vì thế mức chi phí để xây dựng nên một ngôi nhà cấp 4 thường có mức chi phí thấp, phù hợp với mức kinh tế của đa số các gia đình Việt.

Mặc dù hiện nay, mức chi phí xây dựng nhà cấp 4 có nhiều kiểu dáng khác nhau, chi phí cũng có sự biến động nhất định, tùy thuộc vào diện tích cũng như độ khó khi thi công. Nhưng nó vẫn được xem là mẫu nhà “quốc dân”.

Chi phí thiết kế nhà cấp 4 cực kì hợp lý

Chi phí thiết kế nhà cấp 4 cực kì hợp lý

Gợi ý những cách thiết kế nhà cấp 4 đẹp và đang được ưa chuộng

Dưới đây là một vài gợi ý Hưng Thành Phát chia sẻ tới bạn đọc đang có ý định thiết kế mặt tiền nhà cấp 4 đẹp hiện đại, sang trọng.

Thiết kế mặt tiền nhà cấp 4 đẹp với tiểu cảnh đồng quê

Nếu bạn là tín đồ của phong cách đồng quê giản dị, mộc mạc với kiến trúc 4 gian truyền thống pha chút hiện đại, tiện nghi thì chắc chắn không thể bỏ qua mẫu nhà thiết kế mặt tiền đẹp có tiểu cảnh.

Thiết kế mặt tiền nhà cấp 4 đẹp với tiểu cảnh đồng quê 

Thiết kế mặt tiền nhà cấp 4 đẹp với tiểu cảnh đồng quê

Tiểu cảnh ở phần mặt tiền của nhà đẹp cấp 4, vì vậy thiết kế làm sao để phần tiêu cảnh trong thật tự nhiên và mang lại cảm giác “hương đồng cỏ nội” là bài toán khó với nhiều kiến trúc sư. Tuy nhiên, các mẫu nhà cấp 4 đẹp với tiểu cảnh đồng quê được các kiến trúc sư Hưng Thành Phát khéo léo lồng ghép, tạo nên không gian sống giản dị nhưng không kém phần sang trọng.

Mẫu mặt tiền nhà cấp 4 đẹp với tiểu cảnh đồng quê 

Mẫu mặt tiền nhà cấp 4 đẹp với tiểu cảnh đồng quê

Bạn có thể bày trí tiểu cảnh ở trước vườn với những hoa cỏ, con vật đồng quê quen thuộc đan xen. Không gian vườn nhà của bạn nhìn sẽ gần gũi và chân thật hơn.

Thiết kế nhà cấp 4 bằng việc sử dụng kính cường lực

Thiết kế nhà cấp 4 bằng việc sử dụng kính cường lực không còn quá xa lạ với nhiều hộ gia đình. Loại vật liệu này đang rất được ưa chuộng sử dụng làm vật liệu trang trí khi thiết kế nhà. Với khả năng chịu lực tốt cùng với khả năng hấp thụ ánh sáng tốt, ngôi nhà sử dụng kính cường lực sẽ trở nên thông thoáng và xinh đẹp hơn.

Xem mẫu nhà cấp 4 đẹp nhất

Xem mẫu nhà cấp 4 đẹp nhất

Toàn bộ mặt tiền của ngôi nhà sử dụng kính cường lực giúp bạn có thể dễ dàng nhìn vào bên trong. Không chỉ vậy, nhìn từ xa, thiết kế này còn giúp không gian bên trong nhà trở nên rộng rãi hơn.

Bản thiết kế nhà cấp 4

Bản thiết kế nhà cấp 4

Thiết kế mẫu nhà cấp 4 với giàn hoa tươi

Mặt trước nhà cấp 4 đẹp có giàn hoa tươi

Mặt trước nhà cấp 4 đẹp có giàn hoa tươi

Trang trí mẫu nhà cấp 4 đẹp với giàn hoa tương tại ra nét đặc trưng riêng biệt trong thiết kế của gia chủ. Nhìn từ xa, thiết kế nhà cùng với giàn hoa tươi tạo cảm giác ngỡ ngàng và thu hút cho người nhìn khi chạm mắt tới ngôi nhà. Cùng với ngôi nhà cấp 4, giàn hoa mang tới cho gia chủ không gian sống tuyệt vời, thơm ngát và tràn đầy năng lượng.

Không gian đẹp nhà cấp 4

Không gian đẹp nhà cấp 4

Những mẫu thiết kế nhà cấp 4 đẹp và được ưa chuộng hiện nay

Mẫu nhà cấp 4 đẹp có gác lửng

Xây dựng nhà cấp 4 có gác lửng là một trong những mẫu nhà đẹp đang chiếm được thiện cảm đông đảo của khách hàng hiện nay.

Bởi lẽ, thiết kế gác lửng trong ngôi nhà sẽ giúp bạn tận dụng tối đa diện tích của ngôi nhà mà không bị ảnh hưởng tới chiều cao. Đặc biệt, các mẫu nhà cấp 4 đẹp có gác lửng không khiến bạn tốn nhiều chi phí, vừa tận dụng được tối đa công năng sử dụng mà còn mang tới cho ngôi nhà vẻ đẹp sang trọng, hiện đại.

Mẫu nhà cấp 4 đơn giản có gác lửng

Mẫu nhà cấp 4 đơn giản có gác lửng

Mẫu nhà cấp 4 đẹp có kèm gác lửng

Mẫu nhà cấp 4 đẹp có kèm gác lửng

Mẫu nhà cấp 4 đơn giản có kèm gác lửng

Mẫu nhà cấp 4 đơn giản có kèm gác lửng

Mẫu nhà cấp 4 mái Thái

Mẫu nhà cấp 4 đẹp mái thái hiện rất được yêu thích tại các vùng nông thôn. Với những gia đình có mức thu nhập khá và diện tích đất rộng thì đây chắc chắn đây là mẫu thiết kế nhà cấp 4 mà bạn khó thể bỏ qua.

Mẫu nhà đẹp cấp 4 mái thái hiện rất đa dạng về kiểu dáng, đáp ứng được các nhu cầu thẩm mỹ, sinh hoạt của các hộ gia đình Việt Nam.

Kiểu nhà cấp 4 đơn giản đẹp với mái thái sang trọng

Kiểu nhà cấp 4 đơn giản đẹp với mái thái sang trọng

Mẫu mẫu nhà cấp 4 đơn giản mái thái

Mẫu mẫu nhà cấp 4 đơn giản mái thái

Kiến trúc mẫu nhà cấp 4 đẹp mái thái

Kiến trúc mẫu nhà cấp 4 đẹp mái thái

Thiết kế nhà cấp 4 mái bằng

Bản thiết kế nhà cấp 4 mái bằng đang trở thành xu hướng được đông đảo gia đình lựa chọn khi thiết kế cho ngôi nhà của mình. Với mẫu nhà cấp 4 đẹp mái bằng sẽ rất phù hợp để bạn xây dựng trên những mảnh đất có diện tích hạn chế hoặc khu vực thành thị cần tối ưu không gian.

Với kết cấu mái bằng, xây nhà đổ bê tông bằng phẳng sẽ giúp phần mái ngôi nhà luôn khô thoáng, không ứ đọng nước. Hiện nay, nhiều hộ gia đình cũng tận dụng phần mái làm sân thượng để phơi đồ, trồng cây xanh rất tiện nghi.

Thiết kế nhà cấp 4 mái bằng đẹp, đơn giản

Thiết kế nhà cấp 4 mái bằng đẹp, đơn giản

Những mẫu nhà cấp 4 đẹp mái bằng đẹp

Những mẫu nhà cấp 4 đẹp mái bằng đẹp

Nhà ống cấp 4 mái bằng sang trọng, tinh tế

Nhà ống cấp 4 mái bằng sang trọng, tinh tế

Mẫu nhà cấp 4 đẹp mái lệch

Mẫu nhà cấp 4 đẹp hiện đại với phần mái lệch tạo điểm nhấn ấn tượng cho không gian. Gia chủ có thể tăng thêm diện tích sử dụng khi bố trí gác lửng hoặc tận dụng mái để làm sân phơi đồ vô cùng tiện lợi.

Mẫu nhà cấp 4 đẹp mái lệch

Mẫu nhà cấp 4 đẹp mái lệch

Thiết kế nhà cấp 4 hiện đại mái lệch

Thiết kế nhà cấp 4 hiện đại mái lệch

Mẫu nhà cấp 4 mái lệch hiện đại

Mẫu nhà cấp 4 mái lệch hiện đại

Thiết kế nhà cấp 4 mái ngói

Hiện nay các mẫu nhà cấp 4 đẹp mái ngói rất đa dạng và không hề bị giới hạn bởi những yếu tố như vùng miền, độ tuổi, thành thị hay nông thôn, … Bất kỳ công trình nào cũng có thể sử dụng ngói để tạo điểm nhấn cho ngôi nhà.

Hiện nay các mẫu nhà đẹp cấp 4 lợp ngói được xây dựng rất linh hoạt, bạn có thể lựa chọn thiết kế nhà cấp 4 theo nhiều phong cách khác nhau. Hoặc đơn giản nhất chỉ cần bổ sung thêm sân vườn rộng là đã có thể có được mẫu nhà cấp 4 sân vườn mái ngói đậm chất Nhật Bản.

Mẫu nhà đẹp cấp 4 mái ngói đẹp, cổ điển

Mẫu nhà đẹp cấp 4 mái ngói đẹp, cổ điển

Mẫu nhà cấp 4 đẹp thiết kế mái ngói sang trọng

Mẫu nhà cấp 4 đẹp thiết kế mái ngói sang trọng

Xem mẫu nhà cấp 4 mái ngon đẹp

Xem mẫu nhà cấp 4 mái ngon đẹp

Mẫu nhà cấp 4 đơn giản

Nếu bạn đang tham khảo mẫu nhà cấp 4 đẹp, thì chắc chắn không thể bỏ qua mẫu nhà cấp 4 đơn giản dưới đây. Mẫu nhà cấp 4 với thiết kế phần mái nhà ấn tượng. Tuy không có quá nhiều điểm nhấn ấn tượng nhưng xét tổng thể ngôi nhà vẫn tạo ra sự khác biệt, không đem lại sự nhàm chán cho người nhìn.

Phần nhà nhà hơi dốc nhẹ giúp cho mẫu thiết kế có được sự cân bằng đẹp mắt. Không gian nhà sử dụng toàn bộ khung cửa kính càng giúp ngôi nhà có được độ thoáng và sang trọng.

Mẫu nhà cấp 4 đơn giản

Mẫu nhà cấp 4 đơn giản

Mẫu nhà đẹp cấp 4 thiết kế đơn giản, bắt mắt

Mẫu nhà đẹp cấp 4 thiết kế đơn giản, bắt mắt

Kiểu thiết kế nhà cấp 4 hiện đại, đơn giản, và đẹp

Kiểu thiết kế nhà cấp 4 hiện đại, đơn giản, và đẹp

Mẫu nhà cấp 4 đẹp độc lạ

Mẫu nhà cấp 4 độc lạ sẽ là gợi ý tuyệt vời dành cho bạn khi muốn thiết kế nhà cấp 4 đẹp. Kiến trúc của ngôi nhà được thiết kế theo phong cách freestyle, dưới đôi bàn tay tài hoa của các kiến trúc sư đã tạo nên không gian sống vô cùng độc đáo, nổi bật.

Mẫu nhà cấp 4 đẹp, độc lạ giống như một làn gió mới, thổi hồn vào nền kiến trúc, tạo ra sự đa dạng cho các kiểu nhà cấp 4 đẹp.

Mẫu nhà cấp 4 đẹp độc đáo, đẹp

Mẫu nhà cấp 4 đẹp độc đáo, đẹp

Nhà cấp 4 đẹp hiện đại

Nhà cấp 4 đẹp hiện đại

Xem mẫu nhà cấp 4 thiết kế độc đáo

Xem mẫu nhà cấp 4 thiết kế độc đáo

Thiết kế nhà cấp 4 kết hợp sân vườn

Nhà cấp 4 kết hợp sân vườn đang là xu hướng thiết kế nhà cấp 4 nhận được nhiều sự quan tâm từ các gia chủ. Thay vì sống ở trong những ngôi nhà cao tầng, đầy đủ tiện nghi thì phong cách sống hòa hợp với thiên nhiên đang rất được ưa chuộng.

Mỗi công trình nhà vườn sẽ có những đặc trưng và điểm nhấn riêng. Tuy nhiên, phong cách này có thể được xem là làn gió mới, mang hơi hướng hiện đại kết hợp với xưa cũ cho những ngôi nhà ở nông thôn.

Mẫu nhà cấp 4 đẹp kết hợp sân vườn phong cách châu âu

Mẫu nhà cấp 4 đẹp kết hợp sân vườn phong cách châu âu

Nhà cấp 4 kết hợp sân vườn sang trọng

Nhà cấp 4 kết hợp sân vườn sang trọng

Thiết kế nhà cấp 4 kết hợp sân vườn hiện đại

Thiết kế nhà cấp 4 kết hợp sân vườn hiện đại

Mẫu nhà cấp 4 đẹp kiểu Châu Âu

Mẫu nhà cấp 4 đẹp kiểu Châu Âu thường được thiết kế với những cột trụ cao, có các bức tường dày, vuông tạo nên sự mềm mại và mang hơi hướng hiện đại của phong cách trời Tây. Điểm nhấn của phong cách Châu Âu là sử dụng gam màu trung tính nhằm tôn lên nét đẹp độc đáo, cầu kỳ cho tổng thể ngôi nhà.

Không gian đẹp nhà cấp 4 kiểu Châu Âu độc đáo

Không gian đẹp nhà cấp 4 kiểu Châu Âu sang trọng

Mẫu nhà đẹp cấp 4 phong cách Châu Âu độc đáo

Mẫu nhà đẹp cấp 4 phong cách Châu Âu độc đáo

Thiết kế nhà cấp 4 đẹp theo phong cách Châu Âu

Thiết kế nhà cấp 4 đẹp theo phong cách Châu Âu

Mẫu nhà cấp 4 kiểu Nhật

Xu hướng xây nhà cấp 4 kiểu Nhật hiện đang rất được lòng các gia chủ. Các mẫu nhà cấp 4 đẹp kiểu Nhật ở Việt Nam nhìn chung vẫn mang đậm nét đặc trưng phù hợp với lối sống cả người Việt. Thiết kế không gian mở, hài hòa với thiên nhiên nên không gian ngôi nhà luôn sáng và thoáng rộng.

Nếu bạn là người yêu thích thiên nhiên thì chắc chắn không nên bỏ qua mẫu thiết kế nhà cấp 4 này.

Mẫu nhà cấp 4 đẹp kiểu Nhật sang trọng

Mẫu nhà cấp 4 đẹp kiểu Nhật sang trọng

Nhà cấp 4 kiểu Nhật sang trọng

Nhà cấp 4 kiểu Nhật sang trọng

Mẫu nhà cấp 4 kiểu Nhật độc đáo

Mẫu nhà cấp 4 kiểu Nhật độc đáo

Thiết kế nhà cấp 4 kiểu Pháp

Sẽ thật tuyệt vời nếu như bạn sở hữu cho mình mẫu nhà cấp 4 hiện đại theo phong cách kiểu pháp. Thiết kế độc đáo này mang tới bạn không gian sống đẹp, sang trọng đậm chất cổ kính, quý phái.

Mẫu nhà cấp 4 đẹp này cũng tương tối gọn, không phô diễn cầu kỳ như cách thiết kế cổ điển xa hoa lộng lẫy. Mẫu nhà cấp 4 kiểu Pháp làm toát lên vẻ đẹp hiện đại pha chút cổ kính giúp gia chủ khẳng định phong cách của riêng mình.

Kiểu nhà cấp 4 hiện đại phong cách Pháp độc đáo

Kiểu nhà cấp 4 hiện đại phong cách Pháp độc đáo

Mẫu nhà cấp 4 đẹp kiểu Pháp

Mẫu nhà cấp 4 đẹp kiểu Pháp

Nhà cấp 4 kiểu Pháp sang trọng

Nhà cấp 4 kiểu Pháp sang trọng

Mẫu nhà cấp 4 hình chữ L

Thiết kế nhà cấp 4 hình chữ L là một trong những thiết kế đậm nét phương đông với cách bố trí theo kiến trúc hình khối độc đáo.

Mẫu nhà cấp 4 đẹp hình chữ L sẽ giúp không gian ngôi nhà được mở rộng một cách tự nhiên, trong khi chi phí xây dựng cũng không mất quá nhiều, chắc chắn sẽ khiến bạn hài lòng.

Thiết kế mẫu nhà cấp 4 đẹp hình chữ L

Thiết kế mẫu nhà cấp 4 đẹp hình chữ L

Thiết kế nhà cấp 4 hình chữ L đơn giản, sang trọng

Thiết kế nhà cấp 4 hình chữ L đơn giản, sang trọng

Thiết kế mẫu nhà cấp đẹp 4 hình chữ L phong cách hiện đại

Thiết kế mẫu nhà cấp đẹp 4 hình chữ L phong cách hiện đại

Thiết kế nhà cấp 4 đẹp diện tích 5×12m

Với diện tích 5×12m cũng đã đủ để bạn có thể sở hữu mẫu nhà cấp 4 đẹp nhất hiện nay. Bạn có thể thiết kế nhà cấp 4 theo ý riêng của mình và mẫu nhà cấp 4 diện tích 5×12m với phong cách hiện đại trẻ trung sẽ là lựa chọn tuyệt vời.

Ngôi nhà được thiết kế theo khối hình chữ nhật, phần trên đổ mái bằng kết hợp cùng hệ thống cửa kính càng làm tôn lên nét đẹp sang trọng và tinh tế.

Những kiểu nhà cấp 4 đẹp với diện tích 5x12m

Những kiểu nhà cấp 4 đẹp với diện tích 5x12m

Các mẫu nhà cấp 4 hiện đại, sang trọng diện tích 5x12m

Các mẫu nhà cấp 4 hiện đại, sang trọng diện tích 5x12m

Mẫu nhà cấp 4 hiện đại

Mẫu nhà cấp 4 hiện đại

Mẫu nhà cấp 4 diện tích 5×15m

Mẫu nhà cấp 4 đẹp diện tích 5×15m mái thái cũng là một gợi ý hay dành cho bạn. Với thiết kế phần mái nhà cao sẽ không bao giờ lỗi thời. Ngược lại nó còn được xem là thời thượng, mái nhà cao giúp không gian ngôi nhà trở nên thông thoáng. Tùy theo sở thích mà bạn có thể bố trí những gam màu sắc khác nhau, làm nổi bật kiến trúc ngôi nhà.

Mặt tiền nhà cấp 4 hiện đại 5×15m

Mặt tiền nhà cấp 4 hiện đại 5×15m

Thiết kế mẫu nhà cấp 4 đẹp diện tích 5×15m

Thiết kế mẫu nhà cấp 4 đẹp diện tích 5×15m

Thiết kế nhà cấp 4 đẹp diện tích 5×15m sang trọng

Thiết kế nhà cấp 4 đẹp diện tích 5×15m sang trọng

Mẫu nhà cấp 4 đẹp diện tích 5×20m

Mẫu nhà cấp 4 đẹp có diện tích 5×20m là một trong những mẫu thiết kế nhà cấp 4 hiện đại rất được ưa chuộng hiện nay. Mặt tiền ngôi nhà bạn có thể tận dụng để kinh doanh, buôn bán. Không gian bên trong có thể bố trí phòng khách và phòng nấu ăn. Với cách bố trí và thiết kế khoa học ngôi nhà của bạn sẽ trở nên sang trọng và đẳng cấp hơn rất nhiều.

Nhà cấp 4 diện tích 5×20m đẹp

Nhà cấp 4 diện tích 5×20m đẹp

Mẫu nhà cấp 4 đẹp diện tích 5×20m

Mẫu nhà cấp 4 đẹp diện tích 5×20m

Nhà cấp 4 diện tích 5×20m

Nhà cấp 4 diện tích 5×20m

Thiết kế nhà cấp 4 diện tích 6×20m

Với diện tích 6×20m bạn có thể tham khảo các mẫu nhà cấp 4 đẹp có thêm phần gác lửng để mở rộng không gian cho ngôi nhà. Thiết kế nhà cấp 4 này cũng có thể biến hóa dưới nhiều phong cách đa dạng như tân cổ điển, hiện đại, cổ điển, …

Mẫu nhà cấp 4 đơn giản 6x20m đẹp

Mẫu nhà cấp 4 đơn giản 6x20m đẹp

Mẫu nhà cấp 4 đơn giản diện tích 6x20m

Mẫu nhà cấp 4 đơn giản diện tích 6x20m

Mẫu nhà cấp 4 đẹp giá 300 triệu

Mẫu nhà cấp 4 đẹp giá 300 triệu tưởng chừng như không thể nhưng lại hoàn toàn có thể. Bạn không nghe nhầm đâu, với mức kinh phí này đã đủ để bạn có thể xây dựng ngôi nhà cấp 4 nhỏ xinh ấm cúng với thiết kế độc đáo dành riêng cho mình.

Nhà cấp 4 giá 300 triệu rất phù hợp với những cặp vợ chồng trẻ muốn ở riêng. Thiết kế nhà cấp 4 để tối ưu nhất bạn có thể lựa chọn mái bằng hoặc mái nghiêng, đơn giản nhưng lại vô cùng độc đáo.

Thiết kế nhà cấp 4 đẹp hiện đại giá 300 triệu sang trọng

Thiết kế nhà cấp 4 đẹp hiện đại giá 300 triệu sang trọng

Kiểu nhà cấp 4 hiện đại giá 300 triệu đẹp

Kiểu nhà cấp 4 hiện đại giá 300 triệu đẹp

Mẫu nhà cấp 4 đẹp hiện đại giá 300 triệu

Mẫu nhà cấp 4 đẹp hiện đại giá 300 triệu

Mẫu nhà cấp 4 đẹp ở nông thôn

Với những ngôi nhà ở nông thôn có diện tích đất lớn và là gia đình có nhiều thế hệ sinh sống thì việc thiết kế mẫu nhà cấp 4 đẹp có diện tích rộng sẽ là lựa chọn cực kỳ phù hợp.

Thiết kế nhà cấp 4 theo phong cách này thường mang một chút hơi hướng của kiến trúc thành thị nhưng vẫn giữ được nguyên vẹn nét tinh tế, đơn giản phù hợp với các thành viên trong gia đình khi cùng nhau chung sống.

Mẫu nhà đẹp cấp 4 ở nông thôn rộng, đẹp

Mẫu nhà đẹp cấp 4 ở nông thôn rộng, đẹp

Mẫu nhà  cấp 4 đẹp ở nông thôn rộng phong cách cổ điển

Mẫu nhà  cấp 4 đẹp ở nông thôn rộng phong cách cổ điển

Mẫu nhà đẹp cấp 4 ở nông thôn rộng

Mẫu nhà đẹp cấp 4 ở nông thôn rộng

Mẫu nhà cấp 4 2 phòng ngủ

Mẫu nhà cấp 4 đẹp có 2 phòng ngủ với đầy đủ công năng, tiện nghi cho gia đình 2-4 người sẽ là lựa chọn tuyệt vời cho những hộ gia đình ở nông thôn.

Chi phí để xây những kiểu nhà cấp 4 có 2 phòng ngủ cũng không quá đắt đỏ, thêm vào đó bạn sẽ có được không gian sống lý tưởng.

Mẫu nhà cấp 4 đẹp có 2 phòng ngủ

Mẫu nhà cấp 4 đẹp có 2 phòng ngủ

Thiết kế nhà cấp 4 đẹp có 2 phòng ngủ

Thiết kế nhà cấp 4 đẹp có 2 phòng ngủ

Mẫu nhà đẹp cấp 4 có 2 phòng ngủ

Mẫu nhà đẹp cấp 4 có 2 phòng ngủ

Mẫu thiết kế nhà cấp 4 3 phòng ngủ

Thay vì lựa chọn xây những ngôi nhà cao tầng để phân chia các phòng chức năng trên không gian nhiều tầng cho gia đình có nhiều người, thì lựa chọn mẫu nhà cấp 4 đẹp có 3 phòng ngủ sẽ là một lựa chọn tuyệt vời.

Những mẫu thiết kế nhà cấp 4 này vẫn đảm bảo sinh hoạt cho nhiều người, các thành viên trong nhà có thể dễ dàng nói chuyện, sinh hoạt cùng nhau. Đặc biệt, chi phí xây dựng nhà cũng rẻ hơn rất nhiều so với nhà tầng và bạn cũng dễ lau dọn.

Mẫu nhà cấp 4 có 3 phòng ngủ tiện nghi

Mẫu nhà cấp 4 có 3 phòng ngủ tiện nghi

Mẫu nhà cấp 4 đẹp với thiết kế 3 phòng ngủ sang trọng

Mẫu nhà cấp 4 đẹp với thiết kế 3 phòng ngủ sang trọng

Thiết kế nhà cấp 4 có 3 phòng ngủ

Thiết kế nhà cấp 4 có 3 phòng ngủ

Mẫu nhà cấp 4 4 phòng ngủ

Mẫu nhà cấp 4 đẹp có 4 phòng ngủ được thiết kế đơn giản với những đường nét hoa văn tinh tế, kết hợp với kiến trúc độc đáo làm tăng sự khác biệt cho ngôi nhà. Với không gian 4 phòng ngủ rất phù hợp cho những gia đình có đông thành viên cùng sinh hoạt.

Mặt tiền nhà cấp 4 đẹp hiện đại

Mặt tiền nhà cấp 4 đẹp hiện đại 4 phòng ngủ

Mặt tiền mẫu nhà cấp 4 đẹp 4 phòng ngủ tiện nghi

Mặt tiền mẫu nhà cấp 4 đẹp 4 phòng ngủ tiện nghi

Mặt tiền nhà cấp 4 đẹp 4 phòng ngủ

Mặt tiền nhà cấp 4 đẹp 4 phòng ngủ

Mẫu thiết kế nhà cấp 4 đẹp giá 400 triệu

Nếu bạn đang có 400 triệu trong tay nhưng vẫn chưa lựa chọn được mẫu thiết kế nhà cấp 4 đẹp thì có thể tham khảo ngay một số mẫu nhà cấp 4 đẹp dưới đây.

Thiết kế nhà cấp 4 giá 400 triêu sang trọng

Thiết kế nhà cấp 4 giá 400 triêu sang trọng

Thiết kế mẫu nhà cấp 4 đẹp giá 400 triêu sang trọng

Thiết kế mẫu nhà cấp 4 đẹp giá 400 triêu sang trọng

Mẫu nhà đẹp cấp 4 giá 400 triệu

Mẫu nhà đẹp cấp 4 giá 400 triệu

Tổng hợp một số bản vẽ mặt bằng công năng sử dụng nhà cấp 4

Tham khảo một số bản vẽ mặt bằng công năng được sử dụng nhà cấp 4 đang được yêu thích nhất hiện nay.

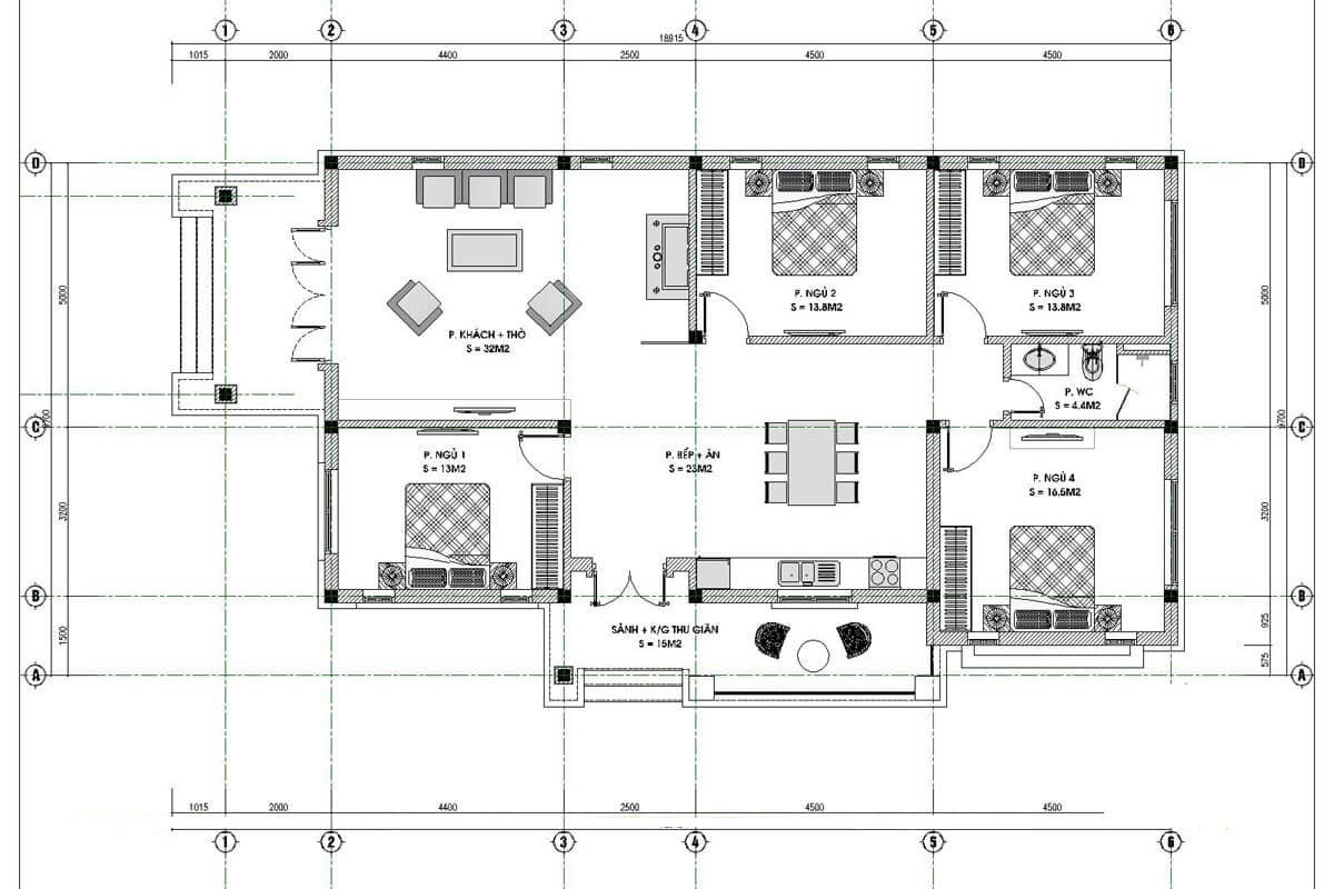
Bản vẽ chi tiết nhà cấp 4 mái bằng gác lửng

Đối với bản vẽ mẫu nhà cấp 4 đẹp thiết kế mái bằng thường gồm có 5 phòng ngủ. Khu vực tầng trệt sẽ được chia thành 1 phòng khách, 1 phòng bếp và 3 phòng ngủ tạo không gian sinh hoạt riêng tư cho mỗi thành viên. Dù là diện tích xây dựng lớn hay nhỏ thì cách bố trí không gian luôn được tính toán kỹ càng và bạn có thể tận dụng tối đa diện tích ngôi nhà.

Bản vẽ chi tiết nhà cấp 4 mái bằng gác lửng 

Bản vẽ chi tiết nhà cấp 4 mái bằng gác lửng

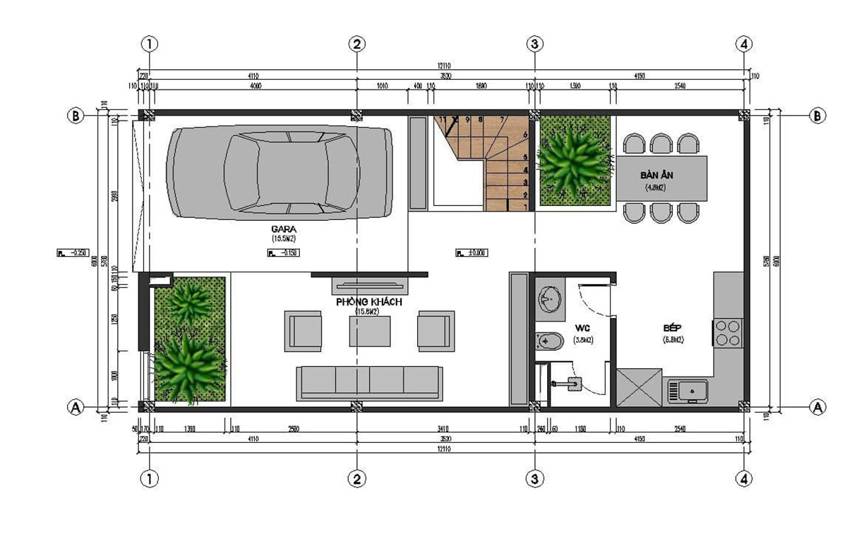
Bản vẽ nhà cấp 4 2 phòng ngủ

Mẫu nhà cấp 4 hiện đại 2 phòng ngủ là mẫu thiết kế được nhiều gia đình ưa chuộng. Ngôi nhà này sẽ được bố trí có 2 phòng ngủ và 1 phòng thờ. Với không gian phòng khách và nhà ăn sẽ được thiết kế liên thông để tạo ra không gian mở giúp ngôi nhà cấp 4 trở nên thông thoáng, rộng mở hơn. Phòng đối diện phòng khách là phòng thờ, bên cạnh phòng thờ lần lượt là 2 phòng ngủ thiết kế khép kín. Tạo nên sự thuận lợi cho không gian sinh hoạt của gia đình.

Bản vẽ nhà cấp 4 2 phòng ngủ 

Bản vẽ nhà cấp 4 2 phòng ngủ

Bản vẽ chi tiết nhà ống cấp 4 mái Thái

Kiểu nhà cấp 4 đẹp mái thái với thiết kế 3 phòng ngủ đang để lại ấn tượng cho gia chủ với thiết kế đẹp, sang trọng không kém phần độc đáo. Với không gian phòng ngủ khép kín, tạo sự thuận lợi cho các thành viên sinh hoạt, ngủ nghỉ. Với thiết kế mái thái, không gian ngôi nhà không chật hẹp, chỉ cần bạn thiết kế sắp xếp không gian, thiết kế ngoại thất, phối màu sẽ càng giúp ngôi nhà trở nên thoáng và đẹp hơn.

Bản vẽ chi tiết nhà ống cấp 4 mái Thái 

Bản vẽ chi tiết nhà ống cấp 4 mái Thái

Bản vẽ chi tiết mẫu nhà cấp 4 đẹp hình chữ L

Sẽ không sai nếu nói mẫu nhà cấp 4 đẹp hình chữ L là mẫu nhà “quốc dân” của nhiều hộ gia đình, nhất là khu vực vùng nông thôn. Kiểu dáng chữ L vừa dễ thi công xây dựng vừa giúp gia chủ tối ưu không gian. Với kiểu nhà này bạn có thể dễ dàng biến tấu với nhiều kiểu phong cách từ đơn giản tới hiện đại, từ cổ điển tới tân cổ điển, … Điểm đặc biệt trong kiến trúc nhà chữ L là bạn có thể bạn dụng phần chân chữ L để làm không gian nhà bếp, nhà tắm cho gia đình. Phần không gian giữa bạn sẽ làm phòng ngủ khép kín cho các thành viên. Thiết kế này còn giúp cho phần sảnh nhà ăn gian diện tích rộng hơn, sang trọng hơn.

Bản vẽ chi tiết mẫu nhà cấp 4 đẹp hình chữ L 

Bản vẽ chi tiết mẫu nhà cấp 4 đẹp hình chữ L

Bản vẽ nhà cấp 4 mái tôn 7x15m

Thiết kế mẫu nhà cấp 4 đẹp mái tôn với diện tích 7x15m không quá xa lạ với các hộ gia đình Việt, nhất là các vùng nông thôn. Sử dụng mái tôn vừa giúp gia chủ tiết kiệm chi phí, vừa nâng cao tính thẩm mỹ cho ngôi nhà. Đối với phần mặt trước nhà cấp 4 thường được trang trí cầu kỳ với nhiều đường nét họa tiết độc đáo. Mặt cắt ngôi nhà bao gồm 5 phòng chính và 1 phòng phụ. Đối với phòng phụ bạn có thể tận dụng làm nhà kho hoặc thiết kế thêm 1 nhà tắm kết hợp nhà vệ sinh rất tiện lợi.

Bản vẽ nhà cấp 4 mái tôn 7x15m

Bản vẽ nhà cấp 4 mái tôn 7x15m

Bản vẽ chi tiết nhà cấp 4 đơn giản 5x20m

Diện tích 5x20m rất phù hợp để bạn thiết kế kiểu nhà cấp 4 đơn giản mặt phố tiện lợi. Phần mái nhà được chia làm 2 bên để đảm bảo được tính năng chống nắng, chống thấm hiệu quả. Tổng thể mặt bằng chung cho ngôi nhà cũng sẽ bao gồm 1 phòng khách, 3 phòng ngủ và 1 phòng bếp. Tất cả không gian các phòng sẽ được phân bổ đều tạo tính đối xứng, cân bằng cho ngôi nhà.

Bản vẽ chi tiết nhà cấp 4 đơn giản 5x20m

Bản vẽ chi tiết nhà cấp 4 đơn giản 5x20m

Bản vẽ nhà cấp 4 mái bằng

Nhắc tới kiểu nhà cấp 4 hiện đại chắc chắn bạn không thể bỏ qua mẫu nhà mái bằng với thiết kế độc lạ và dễ trang trí. Mặt tiền của ngôi nhà bạn có thể sử dụng những đường nét đơn giản vừa giúp ngôi nhà trông chắc chắn hơn, vừa đảm bảo tính thẩm mỹ cho tổng thể kiến trúc. Không gian bên trong nhà sẽ bao gồm 1 phòng khách, 1 phòng nấu ăn và 2 phòng ngủ. Nếu diện tích đất rộng bạn cũng có thể gia tăng thêm số phòng ngủ hoặc thiết kế phòng ngủ khép kín. Nhằm giúp không gian bên trong mở rộng hơn, bạn nên bố trí đồ nội thất gọn gàng, sử dụng nội thất thông minh để tạo nên nét tinh tế cho ngôi nhà.

Bản vẽ nhà cấp 4 mái bằng

Bản vẽ nhà cấp 4 mái bằng

Bản vẽ nhà cấp 4 đơn giản 6×12

Mẫu nhà cấp 4 đẹp đơn giản 6×12 không phải là diện tích quá nhỏ để bạn có thể thiết kế ngôi nhà hạnh phúc cho gia đình mình. Với diện tích này bạn có thể tận dụng xây lên mẫu nhà ống hoặc mẫu nhà mái thái thu hẹp có khoảng sân riêng. Không gian trong nhà vẫn bao gồm 2 – 3 phòng ngủ, 1 phòng khách và 1 phòng ăn. Để giúp không gian tối ưu hơn bạn nên để phòng ăn và phòng khách không khép kín để tạo không gian mở, thông thoáng cho ngôi nhà.

Bản vẽ nhà cấp 4 đơn giản 6x12

Bản vẽ nhà cấp 4 đơn giản 6×12

Bản vẽ chi tiết nhà cấp 4 8×13

Diện tích 8×13 là một diện tích lý tưởng để bạn có thể thiết kế các kiểu nhà cấp 4 đẹp như ý muốn của mình. Bạn có thể thiết kế ngôi nhà theo phong cách mái thái, mái nhật hoặc mái bằng tùy theo điều kiện kinh tế cũng như sở thích. Tuy nhiên, với diện tích chiều dài là 13m và 8m bề ngang bạn, các kiến trúc sư sẽ sắp xếp ngôi nhà có 3 phòng ngủ, 1 phòng ăn và 1 phòng khách. Không gian phòng thường cũng được đặt cạnh ngay phòng khách để tạo sự ấm cúng cho ngôi nhà.

Bản vẽ chi tiết nhà cấp 4 8x13

Bản vẽ chi tiết nhà cấp 4 8×13

Bản vẽ mẫu nhà cấp 4 đẹp giả ngói

Mẫu nhà cấp 4 đẹp giả gói vẫn luôn biết cách mang tới sự khác lạ, độc đáo cho ngôi nhà. Bản vẽ của mẫu nhà này thường gồm 2 phòng ngủ, 1 phòng thờ, phòng khách và phòng ăn. Với những gia đình có quỹ đất rộng thường sẽ thiết kế 3 phòng ngủ và bố trí diện tích phòng ngủ rộng hơn. Với kiểu nhà này, thiết kế khu vực sân thường để rộng và xung quanh có nhiều cây tạo độ thoáng cho ngôi nhà.

Bản vẽ mẫu nhà cấp 4 đẹp giả ngói 

Bản vẽ mẫu nhà cấp 4 đẹp giả ngói

Quy định chiều cao tiêu chuẩn xây dựng nhà cấp 4

Theo quy định của bộ xây dựng về quy định chiều cao xây dựng tiêu chuẩn đối với các công trình nhà ở rất rõ ràng. Trong xây dựng nhà ở dân dụng, mẫu nhà cấp 4 đẹp cũng được quy định chiều cao cụ thể theo tỷ  lệ chiều dày tường và mác vữa xây. Theo đó,

  • Chiều cao mẫu nhà cấp 4 (Tỷ lệ H/d) thường nhỏ hơn 20 khi mác vữa là 75:50
  • Chiều cao của nhà cấp hơn nhỏ hơn 13 khi mác vữa là 25.

Trong đó, H là chiều cao của ngôi nhà. “d” là chiều dày tường nhà.

Trên thực tế, chiều cao của mỗi ngôi nhà cấp 4 sẽ được phân thành 3 mức cơ bản khác nhau. Với những gia đình có nhu cầu sử dụng nhà phòng thấp thì có chiều cao tiêu chuẩn giao động từ 2.4 – 2.7m. Với những gia đình có nhu cầu sử dụng phong có mức trung bình thì chiều cao nhỉnh hơn giao động từ 3-3.3m. Với những gia đình có nhu cầu sử dụng phòng cao hẳn thì chiều cao sẽ trong khoảng 3.6-5m.

Ngoài ra, tùy theo từng khu vực quy hoạch, khí hậu, địa hình mà mẫu nhà cấp 4 đẹp cũng sẽ có sự thay đổi kích thước chiều cao tương ứng. Cụ thể.

Quy định chiều cao tiêu chuẩn xây dựng nhà cấp 4

Quy định chiều cao tiêu chuẩn xây dựng nhà cấp 4

Quy định chiều cao nhà cấp 4 đẹp có gác lửng

Mẫu nhà cấp 4 đẹp gác lửng là mẫu nhà có thiết kế rộng, do đó chiều cao của mẫu nhà này thường được xác định dựa vào chiều cao của tầng trệt.

Chiều cao tầng trệt gác lửng sẽ giao động trong khoảng 7m. Phần tầng lửng sẽ có chiều cao từ 2-2.5m. Kích thước chiều cao này nhằm đảm bảo sự hài hòa trong kiến trúc cũng như giúp việc bố trí đồ nội thất dễ dàng, tiện lợi hơn.

Quy định chiều cao nhà cấp 4 mái thái

Đối với mẫu nhà cấp 4 đẹp mái thái sẽ có chiều cao trong khoảng 3.6-4m, nếu diện tích ngôi nhà ở từ 100m2 – 150m2. Đối với những ngôi nhà có diện tích nhỏ hơn thì chiều cao phần máu sẽ hạ thấp hơn một chút từ 3-3.3m.

Quy định chiều cao nhà cấp 4 mái thái
Quy định chiều cao nhà cấp 4 mái thái

Quy định chiều cao nhà cấp 4 mái tôn, mái bằng

Trong các công trình xây dựng, chiều cao mẫu nhà đẹp cấp 4 mái tôn và mái bằng sẽ được tính toán dựa trên chiều cao tiêu chuẩn. Bởi thiết kế nhà mái tôn hay mái bằng không quá đặc biệt. Do đó, chiều cao phần mái của hai kiểu nhà này thường giao động từ 2.4 – 2.7m. Ngoài ra, những gia đình muốn thiết kế phòng cao hơn có thể sử dụng kích thước trung bình từ 3.6-5m.

Cách tính chi phí xây nhà cấp 4 đơn giản và dễ hiểu

Công thức tính dựa trên hệ số

Về phần móng

  • Thi công móng đơn: Đã gồm trong đơn giá
  • Thi công móng cọc: 30% diện tích trệt
  • Thi công móng băng một phương: 50% diện tích trệt
  • Thi công móng bằng 2 phương: 70% diện tích trệt
  • Thi công móng bè: 100% diện tích trệt

Về phần sàn

  • Diện tích xây dựng có mái che: 100% tầng 1,2,3
  • Diện tích xây dựng không có mái che: 50% sân phơi, sân thượng

Phần mái 

  • Mái tôn: 30%
  • Mái ngói vì kèo sắt: 70%
  • Mái ngói đổ bê tông cốt thép: 100%

Sân trước và sân sau: 50%

Khu vực cầu thang: 100%

Tổng chi phí xây dựng = chi phí móng cọc + chi phí xây dựng phần thô và hoàn thiện

Công thức chi phí thi công cọc và móng

Công thức chi phí thi công cọc và móng sẽ được tính với công thức sau:

(đơn giá x số lượng cọc x chiều dài cọc) + phí thi công cọc + (Hệ số x diện tích sàn x đơn giá)

Cách tính công thức chi phí xây thô và hoàn thiện vật liệu

Cách tính công thức chi phí xây thô và hoàn thiện vật liệu sẽ áp dụng công thức sau:

Tổng diện tích (theo hệ số) x đơn giá

Những bí quyết giảm chi phí xây nhà cấp 4

Bước chuẩn bị cần chú ý kĩ

Trước khi tiến hành xây dựng mẫu nhà cấp 4 đẹp hay bất kì công trình xây dựng nào khác thì bạn đều cần lên trước cho mình ý tưởng thiết kế nhà, dự toán trước về ngân sách cũng như tìm hiểu những thông tin cơ bản khi xây nhà.

Bạn chuẩn bị càng kỹ càng bao nhiêu, việc thực hiện các bước thực thi sẽ càng dễ dàng bấy nhiêu.

Bước chuẩn bị cần chú ý kĩ

Bước chuẩn bị cần chú ý kĩ

Lên ý tưởng thiết kế cụ thể

Thay vì lựa chọn mẫu nhà quá cầu kỳ, bạn có thể nghĩ tới những mẫu thiết kế nhà cấp 4 đẹp có cấu trúc đơn giản, hình khối gọn gàng và không yêu cầu kỹ thuật quá cáo, đặt biệt là mẫu thiết kế đó phù hợp với gia đình mình.

Từ hình khối kiến trúc sẵn có, bạn có thể dễ dàng đánh giá, phân tích những phương án thi công từ đó có thể lên kế hoạch dự toán chi phí hợp lý cho ngôi nhà của mình.

Lựa chọn phong cách thiết kế mẫu nhà cấp 4 đẹp dễ thi công
Lựa chọn phong cách thiết kế mẫu nhà cấp 4 đẹp dễ thi công

Tính toán diện tích xây nhà cấp 4 hợp lý

Bí quyết để xây dựng mẫu nhà cấp 4 đẹp, tiết kiệm và tối ưu nhất là giảm bớt những diện tích không cần thiết. Vì nếu diện tích càng lớn chi phí càng tăng cao mà đôi khi lại không cần thiết với gia đình bạn.

Hãy tính toán diện tích vừa đủ, xây dựng số phòng ngủ phù hợp, phòng bếp linh hoạt vừa đảm bảo tính thẩm mỹ và cũng đảm bảo công năng khi sử dụng.

Tính toán diện tích xây nhà cấp 4 hợp lý

Tính toán diện tích xây nhà cấp 4 hợp lý

Chuẩn bị vật liệu xây dựng

Tùy thuộc vào mức ngân sách mà bạn có thể lựa chọn loại vật tư cho ngôi nhà của mình.

Với những ngôi nhà cấp 4 bạn không cần quá đầu tư vào các vật liệu đắt đỏ, bạn chỉ cần lựa chọn những vật liệu cơ bản, trung bình khá là cũng đã đảm bảo độ bền đẹp, chắc chắn cho ngôi nhà.

Chuẩn bị vật liệu xây dựng

Chuẩn bị vật liệu xây dựng

Lựa chọn các đồ nội thất phù hợp

Nếu nhưng bạn đang muốn tối ưu chi phí thì có thể lựa chọn những món đồ nội thất cơ bản nhất để tiết kiệm. Sau này bạn có thể bổ sung thêm những món đồ nội thất thêm.

Tuy nhiên, bạn có thể lựa chọn những món đồ nội thất thông minh cho gia đình, có nhiều công dụng để tránh không bị lãng phí hoặc bất tiện trong quá trình sử dụng.

Lựa chọn đồ nội thất mẫu nhà cấp 4 đẹp phù hợp

Lựa chọn đồ nội thất mẫu nhà cấp 4 đẹp phù hợp

Lựa chọn các đơn vị xây nhà cấp 4 uy tín

Để xây dựng được căn nhà đẹp, tiết kiệm chi phí, yếu tố quan trọng nhất bạn cần chú trọng là lựa chọn được nhà thầu thi công uy tín, đảm bảo chất lượng.

Trước khi quyết định đưa ra lựa chọn đơn vị nhà thầu nào bạn nên khảo sát, tham quan những công trình thiết kế nhà cấp 4 nào mà họ đã từng xây dựng trước đó để xem xét và đánh giá về năng lực của họ. Có như vậy khi bạn cũng sẽ yên tâm hơn khi lựa chọn đối tác thi công.

Lựa chọn nhà thầu uy tín

Lựa chọn nhà thầu uy tín

Hưng Thành Phát – Đơn vị thiết kế mẫu nhà cấp 4 đẹp và uy tín

Hiện nay, trên thị trường có rất nhiều đơn vị thiết kế nhà cấp 4. Tuy nhiên, không phải đơn vị nào cũng có dày dặn kinh nghiệm và đội ngũ nhân sự chất lượng để đáp ứng nhu cầu của khách hàng.

Với hơn 10 năm kinh nghiệm hoạt động trong lĩnh vực thiết kế và thi công nhà ở, Hưng Thành Phát là một trong những đơn vị thiết kế nhà được đông đảo khách hàng tin tưởng lựa chọn. Chúng tôi đã thực hiện hàng nghìn công trình lớn nhỏ trên khắp tỉnh tình cả nước, để lại những dấu ấn đặc trưng kiến trúc.

Chúng tôi tự hào khi có quy trình làm việc chuyên nghiệp, rõ ràng giúp mang tới sản phẩm chất lượng nhất cho Quý khách hàng

Bước 1: Hiểu được mong muốn của khách hàng

Để giúp khách hàng sở hữu được mẫu mặt tiền nhà cấp 4 đẹp, sang trọng thì việc hiểu được mong muốn của khách hàng là điều vô cùng cần thiết. Để thực sự hiểu được khách hàng cần gì, Hưng Thành Phát luôn đưa ra những câu hỏi như: Khách hàng mong muốn sở hữu ngôi nhà cấp 4 ra sao, muốn có bao nhiêu phòng, thiết kế nội thất ra sao. …

Khi đã trao đổi và hiểu được mong muốn khách hàng, Nội Thất Hưng Thành Phát sẽ hẹn gặp khách hàng trực tiếp để đưa ra những thỏa thuận ban đầu.

Bước 2: Khảo sát tình hình thực tế của lô đất xây dựng nhà cấp 4

Để cho ra được bản thiết kế hoàn hảo, chính xác, các kiến trúc sư của Hưng Thành Phát sẽ tiến hành khảo sát các mặt bằng thực thế để xem khu đất có bị chênh lệch nhiều so với mô tả của khách hàng hay không, từ đó tiến hành các bước tiếp theo.

Bước 3: Tiến hành ký hợp đồng thiết kế thi công nhà cấp 4 với khách hàng

Sau khi đã trao đổi và khảo sát thực tế, hai bên sẽ tiến hành ký thỏa thuận về phong cách thiết kế, hạng mục chi tiết và chi phí thực hiện. Bước này sẽ dùng để đảm bảo quyền lợi của cả hai bên theo đúng hợp đồng đã đề ra trong quá trình xây dựng.

Bước 4: Thực hiện bản vẽ mặt bằng cho ngôi nhà

Thiết kế mẫu nhà cấp 4 đẹp chính là bước quan trọng nhất và cũng là bước mà các kiến trúc sư của Hưng Thành Phát mất nhiều thời gian nhất.

Bản vẽ mặt bằng ngôi nhà sẽ bao gồm quy hoạch tổng thể diện tích đất sử dụng, vị trí đặt ngôi nhà, cảnh quan xung quanh, hướng đi, … tất cả đều được phân chia rõ ràng.

Bạn sẽ này sẽ giúp gia chủ có thể dễ dàng hình dung được thông thể thiết kế ngôi nhà. Công trình luôn đòi hỏi sự chính xác, chỉnh chu đến từng chi tiết.

Bước 5: Dựng phối cảnh và triển khai bản vẽ chi tiết

Sau khi tiến hành xong bước 4, ở bước 5 này mẫu nhà cấp 4 đẹp sẽ được thiết kế dưới dạng 3D trực quan và chính xác nhất. bản vẽ càng chi tiết sẽ càng cho khách hàng dễ dàng hình dung ra ngôi nhà của mình cũng như đưa ra góp ý sửa chữa hợp lý.

Bàn bạc và đi tới thống nhất lần cuối với gia chủ sau đó sẽ triển khai bản vẽ.

Bước 6: Chốt bản vẽ lần cuối và bàn giao

Kiến trúc sư của Hưng Thành Phát sẽ kiểm tra kỹ bản thiết kế một lần nữa sao cho mọi chi tiết đạt tới đỉnh cao của sự hoàn hảo tuyệt vời. Sau đó bản thiết kế sẽ được chúng tôi bàn giao cho đơn vị thi công.

Hy vọng với những chia sẻ của Hưng Thành Phát về mẫu thiết kế nhà cấp 4 đẹp và tiết kiệm chi phí 2023 đã giúp có thêm những kinh nghiệm bổ ích để xây dựng được ngồi nhà đẹp tiết kiệm chi phí.

Nếu bạn đang cần tìm đối tác thiết kế xây nhà trọn gói uy tín, vui lòng liên hệ với chúng tôi theo hotline 0915.707.607. Chúng tôi sẽ mang đến giải pháp tốt nhất, giúp bạn dễ dàng sở hữu căn nhà đẹp như mơ ước với chi phí tiết kiệm nhất.

 

Gọi điện thoại
0918.944.949
Chat Zalo